Tiered villas with full-height glazing, walnut, stone and rattan finishes, private pools and resort-style pools face terraced rice paddies and ocean views, fitting Bali regency and village settings.
Clubhouse, retail and multi-unit layouts support strong holiday rental demand and premium rates, making this a rare high-yield asset for expatriate and international investors seeking steady returns.
Go to our gallery page to immerse yourself in the unique finishes of your new home. This gallery of photos will capture your imagination from the first sketches to the fine details of the design. We invite you to see what images Baza Kedungu has available for you.
Exterior renders, 3D models and photographs of Baza Kedungu. These high-resolution photos and artistic designs give you a glimpse into the future and awe-inspiring design of your potential new home. Visuals of the infrastructure and district provide a complete picture of your new space.
Interior Design. From furniture to beautifully incorporated color schemes and detailed finishes, these photos provide a visual representation of Baza Kedungu. Look at almost every corner (bedrooms, living rooms and spa-style bathrooms). You can also order the house unfurnished or order a customized design from the builder.
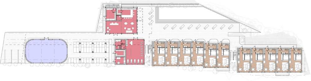
General Plan (site). These are photos that you can use to assess the layout of the project Baza Kedungu from an elevation. They show the area around the house, neighboring buildings and landmarks nearby. This will give you an idea of what the view from your window will be like and the general concept of the infrastructure development near the house now and in the future.
Our gallery is constantly being updated and we are always looking for the newest and most interesting photos. Are you interested in a specific property in Tabanan? Use the call-back option below to find out more. Your dream home in Indonesia could be just one click away.
Leave a request and specialists will select the property