Jl. Pantai Kedungu No.99, Belalang, Kediri, Tabanan, Bali, Indonesia –
Compact open-plan layouts with private bedrooms and terraces deliver efficient space use, strong rental appeal for short-term and long-stay renters, and a contemporary tropical-modern aesthetic that balances indoor-outdoor living with privacy.
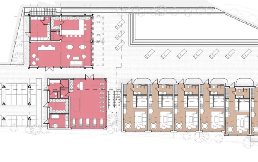
A building general plan is a comprehensive document that defines the overall design and development strategy of a construction project. It also shows the distribution of general plan spaces and the organization of accessibility of the infrastructure around Baza Kedungu.
The general plan Baza Kedungu also takes into account the interaction of the building with its immediate surroundings, detailing external features such as landscaping, parking and access roads. As well as nearby shopping centers, train stations, schools, stores and landmarks. Not only existing ones but also those planned to be built as part of the project.
If the construction is in a new neighborhood, then a whole district improvement plan is attached. So that you have no doubts that the Baza Kedungu will be located in a place suitable for comfortable living.
Dive into our selection of floor plans Baza Kedungu to see what awaits you. All plans are designed to provide the perfect balance of space, light and comfort to ensure that the whole experience is nothing short of enjoyable. On this page, you can choose a specific plan by number of rooms, area and prices.
Don't miss the opportunity to become a resident and find out what it's like to wake up in one of the most luxurious homes in Tabanan. Simply email us today to learn more about Baza Kedungu or let us do the work for you. Leave a request and we'll find the best property that could be your future home.
Leave a request and specialists will select the property